AEW Wärmezentrale Chloosfeld in Rheinfelden

Leistung

2'400 kWh / Jahr

Eingespartes CO2

2'800 Tonnen / Jahr

Eingespartes Erdgas

1'200'000 m3 / Jahr

Unser fachlicher Beitrag

Statik Planung Fachbauleitung Grundbau Bauleitung Stahlbau Tragwerksplanung

Wärme für die Energiestadt Rheinfelden aus Holzschnitzel

Der Stromverbrauch des Kanton Aargaus beträgt momentan ca. 15 TWh pro Jahr, sprich 1.5 x 1010  kWh. Diese enorme Zahl muss vollständig versorgt werden.

Dafür realisiert die Firma AEW in Rheinfelden eine neue Wärmezentrale, welche mit Holzhackschnitzel aus regionalem Holzbau bestückt wird. Der Holzschnitzel Kessel liefert eine Wärmeleistung von kWh 2400 und wird durch zwei Ölbrennöfen zur Spitzenbrechung verstärkt. Damit wird die Wärmebereitstellung gewährleistet. 

Vor Ort werden die letzten Arbeiten für die Parkplätze gemacht und für eine schöne Umgebung gesorgt.

Mehr gibt es hier

Planung

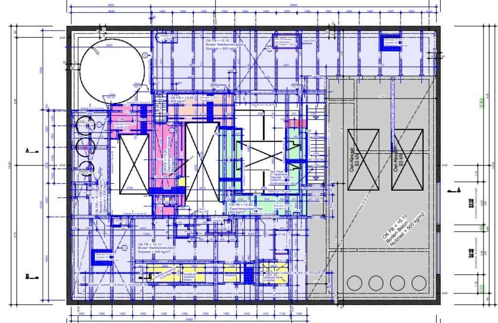
Stahlbauplanung AEW Chloosfeld Rheinfelden
Stahlbauplanung AEW Chloosfeld Rheinfelden
Untersicht auf Stahldeckenplan
Untersicht auf Stahldeckenplan

Ausführung und Innenausbau

Weitere Beiträge zum Thema Energie und Ingenieurwesen

Wir prüfen den Bestand auf Tragfähigkeit wenn z.B. eine Photovoltaikanlage geplant wird kraftwerkryburgschwoerstadt

Spektakuläre Aufnahmen gibt es auch von den Anlieferungen...

z.B. vom Aschecontainer für den Aschebunker oder die Kranpräzisionsarbeit für die punktgenaue Versetzung des Speichers.

Durch die Nutzung dieser Website erklären Sie sich mit unseren Bestimmungen zum Datenschutz einverstanden.