Überbauung MITTI in Wahlen

Unser fachlicher Beitrag

Planung Fachbauleitung Bauleitung Statik
MITTI: Haus Peter-Haus Winkel-Haus Laufen
MITTI: Haus Peter-Haus Winkel-Haus Laufen

In Wahlen, BL, eingebettet in den Kanton Solothurn realisieren wir mit der Tiefbauunternehmung Terraluk als Unternehmer und Bauherr eine Überbauung.

Drei Mehrfamilienhäuser über einer grossen Autoeinstellhalle bilden zusammen die Wohnüberbauung MITTI. Oben in der Mitte entsteht Haus "Peter", Haus "Winkel" kommt links unten zu stehen und rechts heisst das Haus "Laufen".

Insgesamt entstehen 20 Wohnungen, Studio-Loftwohnungen und zwei Gewerberäumlichkeiten.

Das Architekten Team ffbk aus Basel steht in engem Austausch mit unserem jungen Ingenieur Jonas Hürzeler. Er leitet dieses Projekt und ist momentan an den statischen Berechnungen und der Devisierung. Für ihn eine perfekte Aufgabe, um sein erworbenes Fachwissen abrufen und einsetzen zu können und das Gelernte in die Praxis umzusetzen.

Begleitet wird Jonas von unserem erfahrenen Bauingenieur Christoph Rauch. Die beiden bilden ein kreatives und erfolgreiches Team.

Momentan legen sie draussen die Baugrube frei, daher lohnt sich ein Blick auf die Pläne am Bildschirm.

Untergeschoss MITTI
Untergeschoss MITTI
Schnitt durch Haus Peter
Schnitt durch Haus Peter
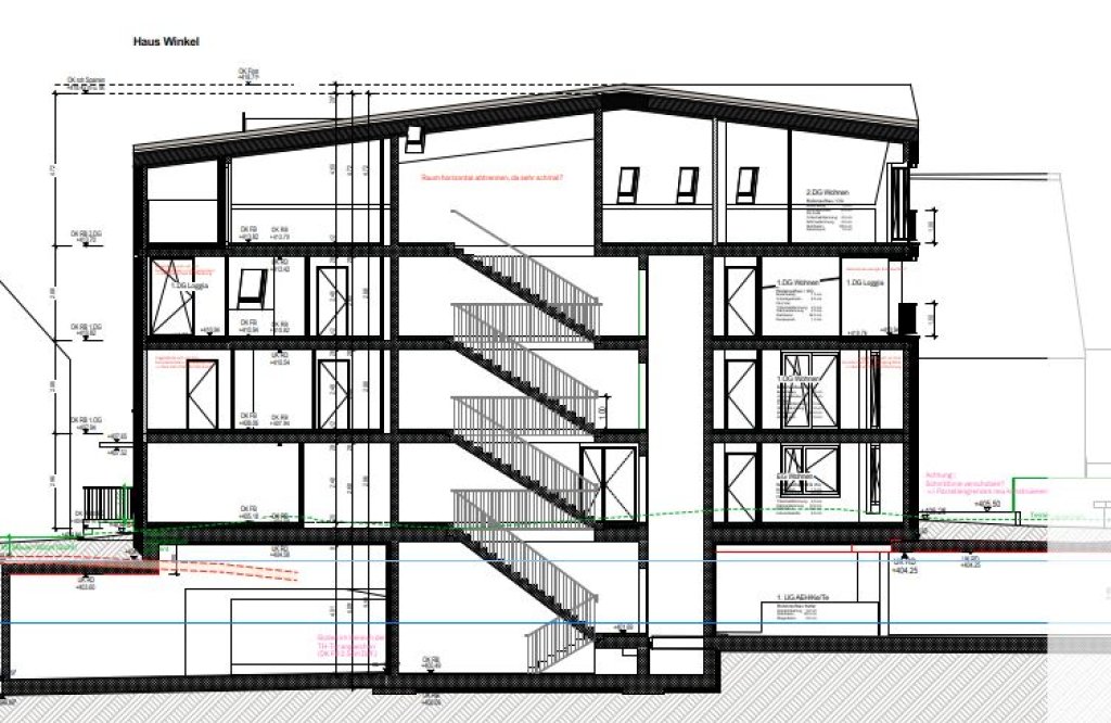
Schnitt durch Haus Winkel
Schnitt durch Haus Winkel
Schnitt durch Haus Laufen
Schnitt durch Haus Laufen
Schnitt durch die Autoeinstellhalle AEH
Schnitt durch die Autoeinstellhalle AEH
Grundrisse Erdgeschoss MITTI
Grundrisse Erdgeschoss MITTI

Durch die Nutzung dieser Website erklären Sie sich mit unseren Bestimmungen zum Datenschutz einverstanden.